NORFO toalettavlukke

Toalett avlukke
Ta kontakt

Fleksibel skjerming for sanitærløsninger i tilfluktsrom

NORFO toalettavlukker benyttes i offentlige og private tilfluktsrom som skjerming mellom toalettene, og bidrar til å ivareta personvernet under bruk. Avlukkene monteres ved ferdigstillelse av tilfluktsrommet, og kan enkelt demonteres og lagres når rommet ikke er i beredskap. En praktisk og plassbesparende løsning tilpasset kravene til moderne tilfluktsrom.

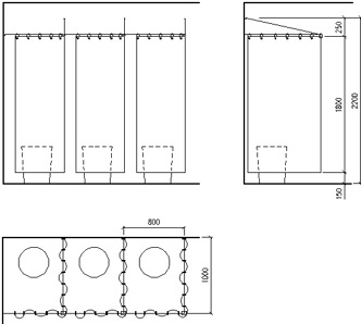
NORFO toalettavlukke består av braketter for veggfeste og forheng i selvslukkende plast.

Montering

  • Ekspansjonsbolter med øye, boltes i vegg etter oppsatt målskjema.
  • Brakettene henges i øyekrokene og tverrstengene monteres mellom disse.
  • Ringene festes til forhengene og hektes inn på brakettene og tverrstengene.

Til hvert toalettavlukke leveres:

1 stk. brakett
1 stk. tverrstang
2 stk. eksp.bolter 6 mm med øye
1 stk. selvslukkende plastforheng
L = 1900 mm, H = 1800 mm
12 stk. ringer til opphenging av plastforheng

Det tas forbehold om konstruksjonsendringer

FDV / Produktblad

Toalettavlukke ILL